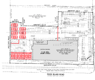
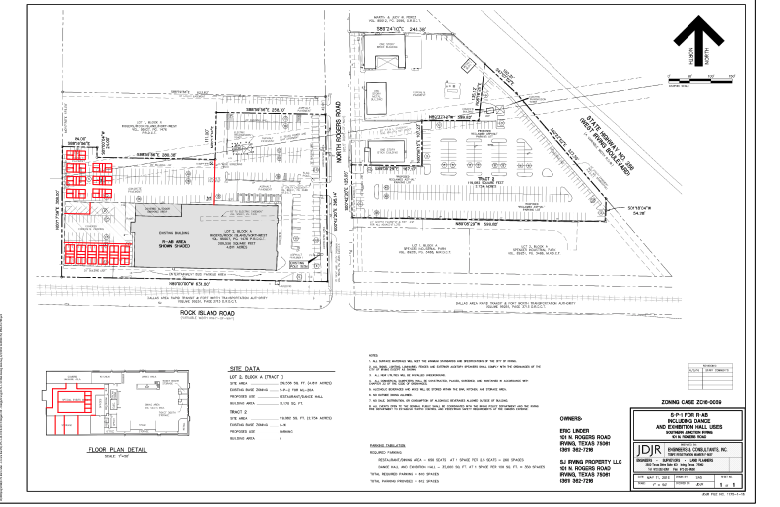
101, 200, and 300 n. Rogers Rd Irving TX
:
🏗 The Retreat at the 19th Hole — Irving, TX
A Hospitality-Driven Wellness Destination with Built-In Equity and Immediate Revenue
Gordon Cooper Real Estate Partners (GCREP) is acquiring and repositioning an 8-acre (346,382 SF) hospitality and wellness campus in Irving, TX. The site spans three contiguous parcels and over 70,390 SF of enclosed buildings, with ~28,000 SF of improved outdoor space primed for future enclosure and conversion to income-generating uses.
🔎 Campus Overview
Main Venue (101 N Rogers Rd): 66,350 SF on 4.815 acres
Executive Office (300 N Rogers Rd): 4,040 SF on 0.41 acres
Commercial Land (200 N Rogers Rd): 2.73 acres (vacant)
Outdoor Amenity Zones: ~28K SF of improved hardscape (to be enclosed)
Fully Operational 30,000+ SF Event Center
4,000+ SF Restaurant + Commercial Kitchen with $1.2M+ in FF&E
Heavy equipment assets: RV, skid steer, scissor lift, trailers, mini-excavator
The previous operator underutilized over 60% of the site. GCREP will unlock new income streams by branding, optimizing, and eventually enclosing outdoor areas into usable indoor square footage.
🔑 Our Edge
Execution Team:
GCREP – master planning, capital strategy, and sponsor
Apex Genesis – licensed GC, internal construction delivery
Eloquent Hospitality – experienced operator of high-volume F&B venues
Rollout & Activation Plan:
Restaurant (event center) generates revenue on Day One
Sub-brands will be delivered in phased build-out:
Cart Girl Social (golf-themed F&B)
The Next Hole (golf sim facility)
Par & Ash (speakeasy cigar lounge)
Fore Wellness (spa & wellness)
The Courts at the Retreat (Pickleball and wellness)
Partnerships secured with:
Invited Clubs (ClubCorp)
NFL alumni + influencer activations
Local institutions for programming, memberships, and public health events
Enclosure of the 28,000 SF rear outdoor area to create climate-controlled, income-generating space — expanding the usable footprint and long-term asset value.
🧮 Financial Highlights
Ultra-Low LTV
At 44% LTV on a $27.7M stabilized valuation,
the project positions the lender with
exceptional collateral coverage
and minimal downside risk.
Massive Built-In Equity
$15.5M of equity is locked in at stabilization, demonstrating strong arbitrage and value-creation.
Strong Cash Flow
The 5-year lease profit delivers $4.6M in predictable, contract-backed income.
Total 5-Year Return
Combining equity capture and operating return, the project produces $28.5M+ in total upside over 5 years.
🏁 Exit Strategy
GCREP will execute a 6–18 month refinance via SBA or conventional debt backed by strong collateral, existing cash flow, and stabilized NOI.
Immediate income from event center and F&B
No permitting or TI delays for core operations
Construction already scoped and priced — led by in-house GC
Future upside from planned enclosure of outdoor space
| Metric | Value |
|---|---|
| Total Project Cost | $12.2M |
| As-Is Valuation | $17M |
| Stabilized Value | $27.7M (7% Cap) |
| As-Complete LTV | 44.0% |
| Built-In Equity | $15.5M+ |
| 5-Year Lease Profit | $4.6M |
| Total 5-Year Return | $28.5M+ |
Pictures of the interior of the property
